Mieten | Häuser | mm2088

Willkommen in Ihrem neuen Zuhause! Traumhaftes Familiendomizil mit modernen und durchdachten Details!

Lage

Die Immobilie liegt inmitten einer angenehmen Wohngegend und bietet somit eine ideale Umgebung für Familien oder Personen, die Ruhe und Entspannung suchen. Die Verkehrsanbindung ist ebenfalls optimal. Die Autobahn ist in kurzer Zeit erreichbar, was eine schnelle Anbindung an umliegende Städte und Regionen ermöglicht. Auch der öffentliche Nahverkehr ist gut ausgebaut, sodass eine problemlose Erreichbarkeit des Stadtzentrums gewährleistet ist. Insgesamt bietet diese Immobilie eine perfekte Kombination aus einer ruhigen und dennoch gut angebundenen Lage sowie einer hochwertigen Ausstattung. Sie eignet sich ideal für Familien, die ein komfortables Zuhause in einer attraktiven Umgebung suchen.

Ausstattung

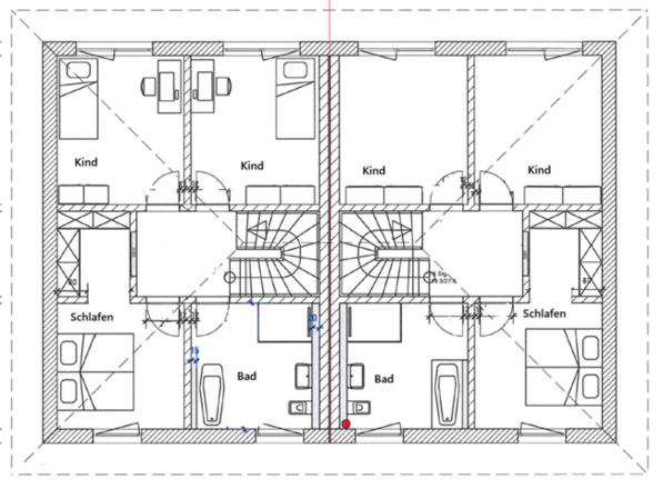
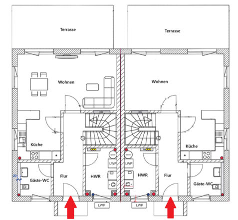
Im Erdgeschoss erwartet Sie ein durchdachter Grundriss mit praktischem Hauswirtschaftsraum, einem Gäste-WC sowie einem großzügigen Wohnbereich mit offener Küche. Vom Wohnzimmer aus gelangen Sie direkt auf die Terrasse, die mit einer Markise ausgestattet ist und an sonnigen Tagen angenehmen Schatten spendet. Das Obergeschoss bietet ein hochwertig ausgestattetes Badezimmer mit großer Dusche, Badewanne, Waschtisch und beleuchtetem Spiegel. Ergänzt wird die Etage durch ein geräumiges Schlafzimmer mit integriertem Ankleidebereich sowie zwei weitere Zimmer, die flexibel als Kinder-, Arbeits- oder Gästezimmer genutzt werden können. Zusätzliche Abstellfläche steht Ihnen im Dachboden zur Verfügung. Für hohen Wohnkomfort sorgen eine Fußbodenheizung sowie elektrische Außenjalousien an sämtlichen Fenstern. Die Beheizung erfolgt effizient über eine moderne Luft/Wasser-Wärmepumpe. Ein pflegeleichter Vinylboden unterstreicht das zeitgemäße Wohnambiente. Stellplätze sind vorhanden; ein Gartenhäuschen bietet zusätzlichen Stauraum für Geräte und Zubehör.

Objektbeschreibung

Willkommen in Ihrem neuen Zuhause im Herzen von Brandenburg an der Havel, im charmanten Stadtteil Neuschmerzke. Diese erstklassige Doppelhaushälfte besticht durch ihre hochwertige Ausstattung und den Komfort eines Erstbezugs. Die Wohnung, die ab April 2026 verfügbar ist, bietet auf großzügigen ca. 127 qm Wohnfläche ein harmonisches Wohnkonzept. Mit vier Zimmern schafft sie eine ideale Raumaufteilung für Paare oder Familien, die viel Wert auf eine gehobene Wohnqualität legen. Das im Jahr 2026 erbaute Gebäude verbindet zeitgemäße Architektur mit funktionalen Wohnlösungen und fügt sich nahtlos in das idyllische Umfeld von Brandenburg an der Havel ein. Lassen Sie sich von der hervorragenden Lage und der modernen Ausführung begeistern und erleben Sie, wie diese Immobilie all Ihre Wohnträume wahr werden lässt. Nutzen Sie diese Gelegenheit für einen Erstbezug in einer der aufstrebendsten Gegenden der Region. Kontaktieren Sie uns für weitere Informationen oder um einen Besichtigungstermin zu vereinbaren. Wir freuen uns darauf, Ihnen diese wunderbare Immobilie vorstellen zu dürfen.

Sonstiges

Es liegt ein Energiebedarfsausweis vor. Dieser ist gültig bis 18.11.2035. Endenergiebedarf beträgt 21.40 kwh/(m²*a). Die Energieeffizienzklasse ist A+. Wir hoffen, Ihnen ein interessantes Angebot unterbreitet zu haben und freuen uns auf Ihren Anruf oder Ihre E-Mail.

Wohnfläche: 127,21 m²
Anzahl Zimmer: 4
Grundmiete: 1.600,00 €
Gesamtmiete: 1.790,80 €
Verfügbar ab: April 2026
PLZ: 14776
Ort: Brandenburg an der Havel / Neuschmerzke
Straße: Rapunzelweg
Hausnummer: 16
Energieausweistyp: Bedarf
Baujahr: 2025
Befeuerungsart: Wärmepumpe LUFT
Warmwasser enthalten: Nein
Referenznummer: mm2088
Mechtel Mareike

Ansprechpartner

Mareike Mechtel

00493381528652
E-Mail schreiben

Anbieter kontaktieren

Was ist die Summe aus 3 und 8?