Mieten | Wohnungen | mm2074

Dachterrasse - Glücklich sein!

Lage

Die angebotenen Wohnungen befinden sich in einer ruhigen Nebenstraße der Hauptstraße in Brandenburg an der Havel. Die Hauptstraße ist die Brandenburger Fußgängerzone und lädt mit Ihren zahlreichen Geschäften und Cafés zum Verweilen ein. Durch die nur 9 km entfernte Autobahn A2 und die Anbindung an die Bundesstraßen B1 und B102 ist Brandenburg hervorragend in das überregionale Infrastruktursystem integriert.

Ausstattung

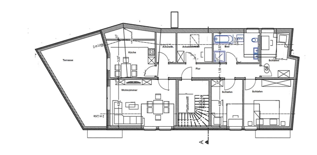
Die angebotene Wohnung befindet sich im Dachgeschoss des Hauses, welches Sie mit dem vorhandenen Fahrstuhl problemlos erreichen. Hier stehen Ihnen 5-Zimmer gegliedert in ein Schlaf-, zwei Kinder- oder Arbeitszimmer, ein Badezimmer mit Badewanne und separater Dusche, ein Wohnbereich und einer Küche zur Verfügung. Vom Wohnzimmer und von der Küche gelangen Sie auf die sehr großzügige Dachterrasse, die im Sommer Ihren Wohnbereich nach außen vergrößert. Ein Abstellraum bittet Ihnen die Möglichkeit, die Dinge, die Sie nicht alltäglich benötigen zu verstauen. Der Fußboden wurde mit einem Vinylbelag in einem modernen und sehr wohnlichen Holzdekor ausgestattet. Die Fenster sind selbstverständlich dreifach verglast. Zusätzlich dazu ist auch die Anmietung eines Pkw-Stellplatzes (mtl. 50,00 €) grundsätzlich möglich.

Sonstiges

Es liegt ein Energieverbrauchsausweis vor. Dieser ist gültig bis 12.10.2032. Endenergieverbrauch beträgt 18.10 kwh/(m²*a). Wesentlicher Energieträger der Heizung ist Luft/wasser Wärmepumpe. Das Baujahr des Objekts lt. Energieausweis ist 2022. Die Energieeffizienzklasse ist A+. Wir hoffen, Ihnen ein interessantes Angebot unterbreitet zu haben und freuen uns auf Ihren Anruf oder Ihre E-Mail.

Wohnfläche: 112,00 m²
Anzahl Zimmer: 5
Anzahl Badezimmer: 1
Grundmiete: 1.344,00 €
Gesamtmiete: 1.734,00 €
Heizkosten enthalten:
Verfügbar ab: 01.03.2026
PLZ: 14776
Ort: Brandenburg an der Havel
Straße: Petersilienstraße
Hausnummer: 1
Regionaler Zusatz: Innenstadt
Stellplätze:
Energieausweistyp: Verbrauch
Energieverbrauch: 18,10 kWh/(a*m2)
Baujahr: 2022
Befeuerungsart: Wärmepumpe LUFT
Warmwasser enthalten: Nein
Referenznummer: mm2074
Mechtel Mareike

Ansprechpartner

Mareike Mechtel

00493381528652
E-Mail schreiben

Anbieter kontaktieren

Was ist die Summe aus 2 und 4?