Mieten | Büros und Praxen | mm1496

Büros in Dresden/Cossebaude zu vermieten!

Lage

Die angebotene Gewerbeeinheit befindet sich in Dresden/Cossebaude, ca. 12 km vom Herzen/Zentrum Dresdens entfernt. Cossebaude ist durch die nur knapp 1 km entfernte Autobahn A4 hervorragend in das überregionale Infrastruktursystem integriert. Das Objekt befindet sich inmitten eines Gewerbeparks/Bürocenters in der Breitscheidstr. 43. Den naheliegenden Bahnhof Cossebaude erreichen Sie in ca. 10 Fußminuten und/oder ca. 2 Autominuten. Die Anbindung an den Öffentlichen Nahverkehr ist ebenfalls gegeben. Auf dem Gelände sind eine Vielzahl verschiedener Gewerbebetriebe vertreten. So haben sich hier z.B. Gartenbau- und Elektroinstallationsbetriebe, sowie Ingenieure, die Siemens AG, sowie viele weitere Unternehmen erfolgreich angesiedelt - in unmittelbarer Nachbarschaft befindet sich zudem die GlaxoSmithKline - ein weltweit erfolgreiches Pharmaunternehmen.

Objektbeschreibung

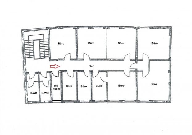
Die zur Vermietung stehende Gewerbefläche befindet sich im 1. Obergeschoss des Gebäudes A in der Breitscheidstr. 43 in Dresden/Cossebaude. Die Einheit hat eine Größe von insgesamt ca. 267,70 m². Neben einer Teeküche und weiteren 9 geräumigen und vor allem hellen, freundlichen Büroräumen stehen 2 WCs (Damen & Herren) im Hausflur zur Verfügung. Die zahlreichen kleineren Büroräume könnten ggf. zusammengelegt werden, sodass weitere Großraumbüros entstehen. In den Büros wurde ein hochwertiger, pflegeleichter Teppich verlegt. Für Mitarbeiter und Kunden stehen Parkplätze unmittelbar vor dem Gebäude zur Verfügung.

Sonstiges

Es liegt ein Energieverbrauchsausweis vor. Dieser ist gültig bis 26.5.2024. Endenergieverbrauch beträgt 90.90 kwh/(m²*a). Wesentlicher Energieträger der Heizung ist Öl. Wir hoffen Ihnen ein interessantes Angebot unterbreitet zu haben und freuen uns auf Ihren Anruf oder Ihre E-Mail.

Gesamtfläche: 267,70 m²
Bürofläche: 267,70 m²
Grundmiete: 1.151,00 €
Nebenkosten: 589,00 €
Gesamtmiete: 1.740,00 €
Heizkosten enthalten:
PLZ: 01156
Ort: Dresden / Cossebaude
Straße: Breitscheidstraße
Hausnummer: 43
Energieausweistyp: Verbrauch
Baujahr: 1978
Befeuerungsart: Öl
Warmwasser enthalten:
Referenznummer: mm1496
Mechtel Mareike

Ansprechpartner

Mareike Mechtel

03381/ 52 86 52
E-Mail schreiben

Anbieter kontaktieren

Was ist die Summe aus 7 und 3?